Литейный цех – зал
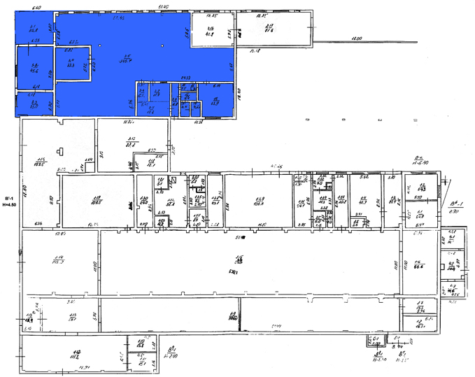
Корпус 3 (Литера В)
Строение, расположено в 90 м от въездных ворот – пр.Мира, 194. Имеется выход на пр.Мира (городская улица). В 100 метрах находится остановка городского транспорта.
| Юридический адрес: | проспект Мира, 194 |
| Адрес в мини-городке: | Литейный проспект, 1 |
| Характеристика расположения: | Строение, расположено в середине технопарка – пр.Мира, 194. Имеется выход на пр.Мира (городская улица). В 100 метрах находится остановка городского транспорта «Ремзавод», пр. Мира -центральная международная магистраль. |
| Этажность: | Двухэтажное кирпичное здание общей площадью – 3 034,5 кв.м |
| Площадь 1 этажа Высота 1 этажа |
2 986,9 кв.м 3,0 – 8,0 м |
| Площадь 2 этажа: Высота 2 этажа |
47,6 кв.м 3,0 м |
| Состояние помещений | Ремонт - в зависимости от потребностей арендатора Перепланировка - в зависимости от потребностей и технических возможностей |
| Электроснабжение: | 220-380 вт |
| Отопление: | Отсутствует |
| Водоснабжение: | Нет |
| Дополнительная информация: | Паркинг Арендатор имеет возможность пользоваться всеми дополнительными услугами в Технопарке |
| Формы сотрудничества: По вопросам аренды или покупки площадей звоните, пишите: Телефон: (0462) 5-33-16, 5-31-50 Электронная почта: molotok2006@ukr.net |
1.Аренда 2.Рассматриваются варианты частичной продажи площадей |
| Возможное использование площадей: | 1 этаж: Производство, магазины и т.д. 2 этаж: Офисы и т.д. Рассматриваются другие предложения |
Информация

План 2-го этажа









