Цех КЗП
Корпус 1б (Литера А)
Строение расположено на главной магистрали города – пр.Мира, 194, на «красной линии». Имеются выход через ворота на пр.Мира, 194 (городская улица). Здание примыкает к административному корпусу 1, 1а, 1в, имеется внутреннее соединение корпусов. В 20-ти метрах находиться остановка городского транспорта.
| Юридический адрес: | проспект Мира, 194 |
| Адрес в мини-городке: | Улица Шлифовальная, 1 |
| Характеристика расположения: | Имеются выход через ворота на пр.Мира, 194 (городская улица) , В 20 метрах находиться остановка городского транспорта «Ремзавод», пр. Мира -центральная международная магистраль В городок из здания выходы на зелёную зону Здание примыкает к административному корпусу 1, 1а, 1в имеется внутреннее соединение корпусов Есть возможность перехода в здание 1а и 1в |
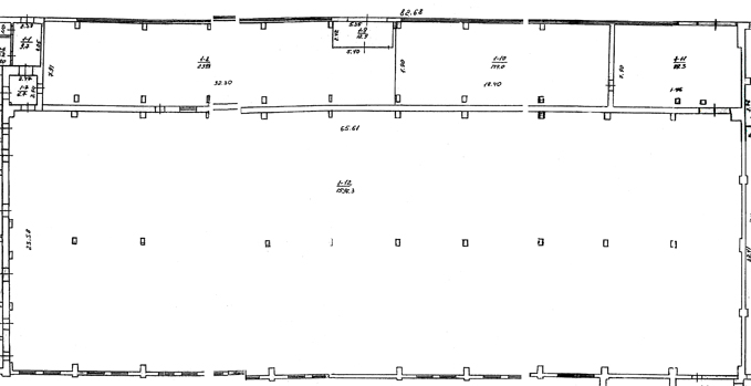
| Этажность: | Одноэтажное кирпичное здание общей площадью – 2 021,5 кв.м |
| Площадь 1 этажа Высота 1 этажа |
2 021,5 кв.м 8 м |
| Состояние помещений | Ремонт - в зависимости от потребностей арендатора Перепланировка - в зависимости от потребностей и технических возможностей |
| Электроснабжение: | 220-380 вт |
| Отопление: | Отсутствует |
| Водоснабжение: | Есть подводка коммуникаций к зданию |
| Дополнительная информация: | Паркинг Охрана Арендатор имеет возможность пользоваться всеми дополнительными услугами в Технопарке |
| Формы сотрудничества: По вопросам аренды или покупки площадей звоните, пишите: Телефон: (0462) 5-33-16, 5-31-50 Электронная почта: molotok2006@ukr.net |
1.Аренда 2.Рассматриваются варианты частичной продажи площадей |
| Возможное использование площадей: | 1 этаж: Концертно-выставочный центр. |
Информация








